
产业的蓬勃发展,滋养着一座城市的生长。
招商蛇口网谷创享大厦,是深圳南山区招商街道沿山路片区更新拆除重建,招商蛇口自有物业工改M0用地首期项目,旨在打造集办公、公寓、商业等功能一体的综合性新一代网谷产业园区,华阳国际作为本案的全过程设计团队参与其中。
01 场地
南山绿脉下,可生长的产城融合
基地背倚大南山,远眺蛇口港区,承接自然与城市的过渡,形成与生态互融相通的城市空间格局。

△总平面图
秩序产城之上,打造绿色云台。设计通过架空裙房连接城市和山体公园,引山入城,形成良好的空间格局,打造山、城、人一体的多样化产业街区。

设计打破传统产业园冰冷单调的印象,融合科技与自然。结合地块东侧公园和架空庭院提供休闲、社交等场所,植入绿色元素,实现“自然疗愈”。

02 共享
场景意趣,共享立体公园
多元化场景,营造现代办公中的空间意趣,共享空间的初衷是促进人群聚焦,交流和分享可以随时发生。

架空层构建社区生活空间,容纳可休憩的公共广场及商业等,与城市共享界面,焕发城市活力。连廊层作为漫游步道,连接城市空间和商业,缔造城市舞台。

露台层为企业创造公共活动平台,营造生态屋顶花园。空中层的研发办公阳台,通过植入小景花园来打破常规办公空间的标准化现象,每隔一层的通高花园阳台为室内外之间创造独特微气候。


03 空间
绿意穿梭,记忆洄游瞬间
在现代都市脉络中,办公空间的每次创新都是对未来工作方式的探索。设计之初考虑空间的通透连贯性,空间让渡景观,打造公园里的产业总部办公室。
区别于传统办公空间的大堂设计,我们将绿意纳入室内,全通透的洄游式办公大堂设计给人回归自然的愉悦感和松弛感。

塔楼采用“Z”型错位平面灵活办公。平面双核心筒设计,塑造更多转角景观面,无角柱大开阔空间,靠山面海,广阔视角下都市景观和自然环境在此交融;多功能会议厅和企业展厅的设置也为产业的多元服务提供更多可能。

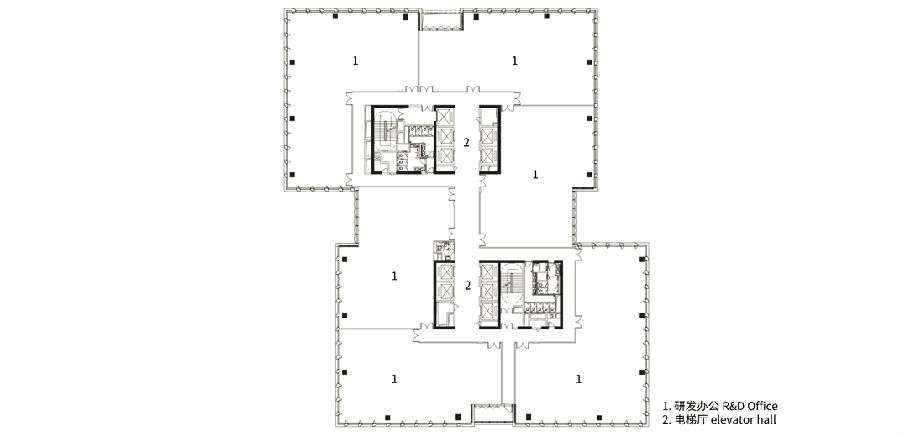
△首层平面图

△标准层平面图

©杰恩设计
当建筑与自然开始对话,办公、生活与社交在绿色云台上同步发生。
04 肌理
呼吸瞬间,再现绿色建造
精筑细节,建筑创作与城市精神开始深度融合。设计以审慎、专业的态度,考究材料、尺度每一维度,研究节点、灯光细节,打造独特的城市生命体。

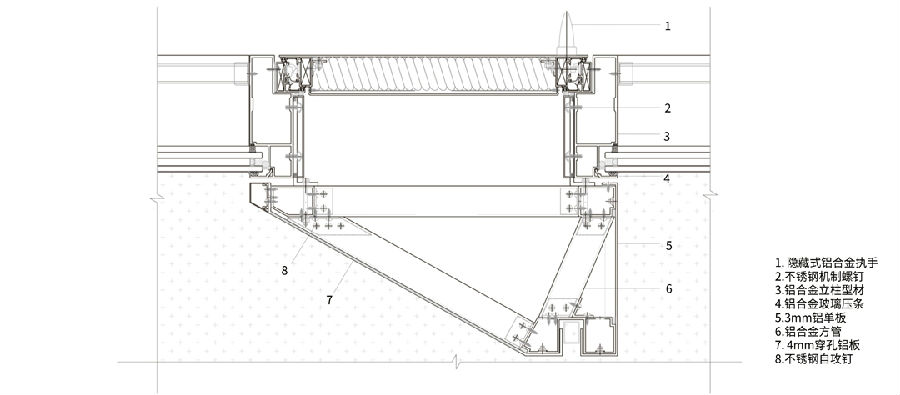
醒目的格构幕墙设计赋予塔楼精致的韵律。为力求建筑完整性,立面采用隐藏式开启扇;同时近人高度的内平开窗也为办公环境提供更有效的通风效果,使整个项目更加节能环保。
方案深化阶段,考虑后期加工成本等可行性,对选材分类整理。施工早期阶段,通过现场VMU对主要材料进行打样验证,继而投入生产施工。



△幕墙标准单元节点

△局部大样节点
可持续性是设计的重要考量。塔楼采用模数化构件,旨在提高建筑效率和质量。采用现场组装施工,提高施工质量精度,实现绿色建造。
华阳国际身在其中,以绿色永续的策略助力办公产业园区长远发展!