
在深圳湾高新区,深圳清华大学研究院新大楼,历时7年,正式落成。
近年来,大湾区科研高地,用地日渐紧张,高密度催生科研办公建筑设计的新挑战。华阳国际从原创设计到全过程设计总包,探索一座硬核理性逻辑与感性浪漫诗意兼得的科研建筑。
01
空间序列:理性场域的感性活力
项目位于大湾区极有影响力的高新科研片区,虽然用地极为紧张,设计希望建筑不是以冰冷姿态将城市隔离,而是呈现兼收并蓄的场所精神。
在建筑形体上,设计采用对角线“双塔”布局,缓解城市高密度压力,形成良好的视线通廊和空间格局。
同时,设计选择将底层架空,消解城市界面连续性与实体拥堵感。裙房体块“漂浮”,形成有遮盖、有阴凉、尺度宜人的开放空间,人们可以从不同方向进入场地内停留、参观、休憩、工作......底层架空和开放式的景观设计,创造出开敞、通透、自由的公共空间。

△场地周边

△设计概念



△开放式街区
在空间的功能划分上,设计兼顾科研效率与人文交流考量。垂直方向的功能复合,叠加了科研办公、通用实验室、专用实验室、科研成果展示、学术会议交流、餐厅食堂、图书阅览等各种功能于一体,形成紧凑、高效、有序的建筑系统。
同时,设计注重公共空间之间的互动、共享,通过下沉广场、中心庭院、多重屋面等空间,促进科研人员的交流,激发知识的流动与创新的孵化。


△功能分区

△垂直叠加

△下沉广场

△中心庭院仰视
在空间的弹性应用上,在建筑低区,连续的大空间平面,为多种实验提供基础,层高、荷载、污废处理、高载重电梯等维度的充足预留,并且通过模块化的实验室机电设计,充分应对未来实验场景的变化。
在建筑高区,除科研、实验空间外,设置通高中庭,提供交流和休闲的场所,拉近人与人之间的联系,提高信息传递的效率。

△低区实验室空间

△大跨度悬挑结构

△三层通高中庭
02
可持续设计:感性愿景的理性建造
科研建筑能耗需求大,尤其需要从设计开始,思考并落实绿色低碳的可持续性策略。
在空间设计上,通过地景引入、立体绿化、空中庭院、下沉广场方式将自然元素融入建筑之中,在高密度办公楼中营造舒适、人性化的研发办公微环境。


△立体绿化
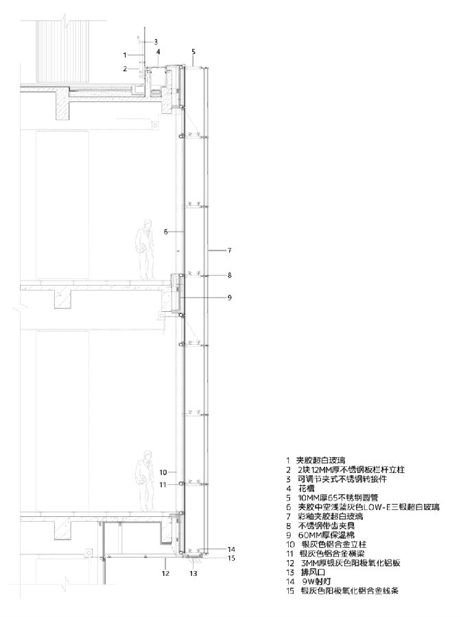
在外立面设计中,通过双层呼吸式外墙、水平遮阳构件、三银LOW-E玻璃等手段,兼顾节能、采光、通风、视线、美观等综合需求。




△建筑立面
△石材立面节点分析图

△双层幕墙节点分析图
此外,通过HVAC系统、溶液除湿新风系统等加持,不仅做到节能低碳,更为使用者提供了健康的工作环境,做到真正的可持续发展。



△室内办公环境
目前,项目已获得美国LEED绿色建筑预认证最高等级-铂金级认证、深圳地标最高级别-铂金级(三星)建成认证。


△项目夜景

△美国LEED绿色建筑预认证最高等级-铂金级认证
至此,深圳清华大学研究院新大楼的落成,不仅是华阳对原创设计的执着追求与品质把控的体现,更是对未来科研建筑发展方向的一次探索。
我们相信,高容积率的科研建筑也可以拥有高品质的多元公共空间,实现科研需求与人本环境的平衡,好的设计不仅是面对场地时的激情创作,更是基于客观条件下的理性思考和责任。
项目档案
项目名称:深圳清华大学研究院新大楼
项目类型:科研建筑
项目地点:深圳,南山
用地面积:15,047.58㎡
总建筑面积:177,718㎡
容积率:8.5
设计时间:2017
竣工时间:2023
建设单位:南山区建筑工务署
使用单位:深圳清华大学研究院
代建单位:华润(深圳)有限公司
设计单位:华阳国际设计集团(全过程设计)
建筑方案团队:肖睿、邱永发、李嵩山、朱哲昊、罗润桦、岑婕、谢振东、黎志锋、陈嘉鹏、雷霄、汪庭卉、王颖
建筑摄影:SFAP
注:文中所有信息和内容均为纯文化交流所用,非项目实际实施和批复许可,不构成销售承诺和交付承诺