
生活不是要使一切都最大化
而是要回馈某些东西
例如光线、空间、形式、宁静、快乐
——格伦·莫卡特
01 场所与思考
项目伊始我们就在思索,要为这座城市临湖生态片区带来一处怎样的场所,并探寻这个场所对于片区发展的价值感。
海和澜庭,位于苏州市太仓科教新城片区,发展接近成熟,确立“城市副中心”的板块地位,周边配套齐全、交通便捷;临近太仓天镜湖、浏河,生态环境优美。东侧建筑紧邻天镜湖,西侧高处可远观湖景。作为“活力生态都心”,我们希望这是一栋集合了未来、艺术、空间三大要素的生活艺术馆。


02 形式与创新
海和澜庭生活艺术馆,沿城市界面,以绸缎而落向湖而展,通过片墙的手法形成错落的建筑体块,将城市界面景观渗透进入室内空间。建筑线条强烈且富有张力,用纯粹的设计语言替代传统意义的建筑立面,面向城市界面展现出其丰富的内部空间。


在体量之间创造入口礼仪院,水院及内院空间,串联建筑体块,别有洞天。在空间洄游中,强调步移景异模糊边界,和园林景观互融共生,面对天镜湖打造极致的观景体验。


空间本身是一个容器,通过层叠、缠绕、延伸、穿透等手法塑造多元场景的叠合,并通过室内外的融合使边界变得模糊,搭建起一个富有层次感、叠加感的纯粹空间。五步一楼,十步一阁,蜿蜒曲折行走之间,移步易景,碰撞出当下的时代音符。


空间遍布水景,模糊室内外的界限,嵌套琉璃盒子,打造江南园林的“空间转合”。

建筑以墙为纸,泼墨于树影斑驳,水光潋滟。玻璃砖取湖光天镜的镜光,波光粼粼,跃然纸上。


中庭空间两层通高,阳光透过屋顶的玻璃天窗洒落在沙盘上,形成温暖的光斑,光影与空间相生相持,浮光掠影,行皆有境,光影幻形,时空渐生。



03 细部与建造
材料选择上着重于现代东方与未来感的营造,为确保落地效果,项目团队多次对应用于现场石材,玻璃砖等材料实地选型,多次打磨推敲材料的上墙效果。同时施工期间也多次巡场反馈意见,通过精心的设计排布,奠定了建筑挺拔舒展而富科技感的形象。

南侧的主要展示面以天镜湖粼粼波光为灵感,将湖光镌刻在舒展的画布上。我们从水纹渐进过渡提取灵感,通过参数化设计的手法,经过多轮的推敲打磨,得到了涟漪状逐级渗透的玻璃砖与石材渐变纹理。

海和澜庭生活艺术馆,透过“现代东方”的语言转译,呈现江南建筑“虽由人作,宛自天开”的韵味。


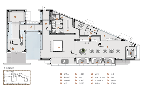
▲一层平面图

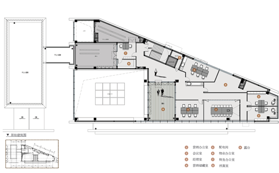
▲二层平面图

▲立面图
项目档案
项目名称:海和澜庭生活艺术馆
建筑类型:居住建筑
项目地点:苏州,太仓
建筑面积:1156.50㎡
设计时间:2023
业主单位:仁恒置地、太仓城投、娄城高新
业主团队:郁倩、韩涛、王晓俊、张小兵、张志军、叶志杰、赵海群、张旭、匡志宸、羌志锋、黄腾达、顾娟、朱晓春
建筑方案设计单位:华阳国际设计集团上海公司
设计总负责:郑默凡、倪坚友
建筑方案团队:倪坚友、王凡、张桎菡、周瑞生、刘宁、何佳殷
建筑施工图单位:苏州城发建筑设计院有限公司
景观设计:重庆市承迹景观规划设计有限公司
室内设计:上海恩威建筑设计有限公司
建筑摄影:墨云视觉、纯点建筑摄影
注:以上图文来自于华阳国际上海公司;本文所有信息和内容均为纯文化交流所用,非项目实际实施和批复许可,不构成销售承诺和交付承诺